TKP名古屋栄カンファレンスセンター
カンファレンスルーム7A
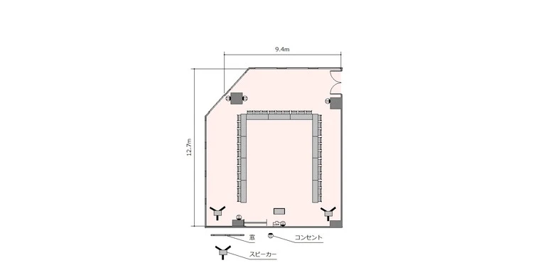
ホワイトボード : 1
演台 : 1
電源タップ : 3
個別空調:有 電気容量(総A数):30A LAN口数:1 窓:有 窓開閉可不可: 可
外受付:可

















〒460-0008
愛知県名古屋市中区栄3-2-3 名古屋日興證券ビル B2階・7階(事務所:7階)
名古屋市営地下鉄 栄駅 8出口 徒歩5分
名古屋市営地下鉄 伏見駅 4出口 徒歩7分 名鉄瀬戸線 栄町駅 徒歩10分
ご利用
可能時間
月曜日:07:00〜23:00
火曜日:07:00〜23:00
水曜日:07:00〜23:00
木曜日:07:00〜23:00
金曜日:07:00〜23:00
土曜日:07:00〜23:00
日曜日:07:00〜23:00
※時間外のご利用についてはご相談ください。
株式会社ティーケーピー
本社:〒162-0844 東京都新宿区市谷八幡町8番地 TKP市ヶ谷ビル2階
お問い合わせ:03-4577-9269