TKP松山市駅前カンファレンスセンター
ホール5A
ホワイトボード : 1
有線マイク : 2
演台 : 1
電源タップ : 5
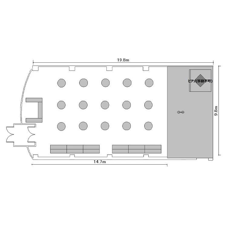
個別空調:有 電気容量(総A数):60A LAN口数:2 窓:なし 窓開閉可不可: 不可
外受付:可


















〒790-0011
愛媛県松山市千舟町4-3-7 青野ビル2階・4~5階(事務所:4階)
伊予鉄道 松山市駅 徒歩3分
ご利用
可能時間
月曜日:07:00〜23:00
火曜日:07:00〜23:00
水曜日:07:00〜23:00
木曜日:07:00〜23:00
金曜日:07:00〜23:00
土曜日:07:00〜23:00
日曜日:07:00〜23:00
※時間外のご利用についてはご相談ください。
株式会社ティーケーピー
本社:〒162-0844 東京都新宿区市谷八幡町8番地 TKP市ヶ谷ビル2階
お問い合わせ:03-4577-9269