TKP京都四条カンファレンスセンター
ホール6E
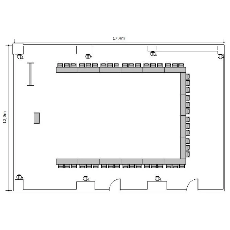
ホワイトボード : 1
有線マイク : 2
演台 : 1
電源タップ : 5
個別空調:有 電気容量(総A数):90A LAN口数:4 窓:有 窓開閉可不可: 不可
外受付:不可
















〒600-8006
京都府京都市下京区立売中之町99 四条SETビル 6階(事務所:6階)
京都市営烏丸線 四条駅 徒歩4分
阪急京都線 烏丸駅 徒歩4分
ご利用
可能時間
月曜日:07:00〜23:00
火曜日:07:00〜23:00
水曜日:07:00〜23:00
木曜日:07:00〜23:00
金曜日:07:00〜23:00
土曜日:07:00〜23:00
日曜日:07:00〜23:00
※時間外のご利用についてはご相談ください。
株式会社ティーケーピー
本社:〒162-0844 東京都新宿区市谷八幡町8番地 TKP市ヶ谷ビル2階
お問い合わせ:03-4577-9269