TKP小倉駅前カンファレンスセンター
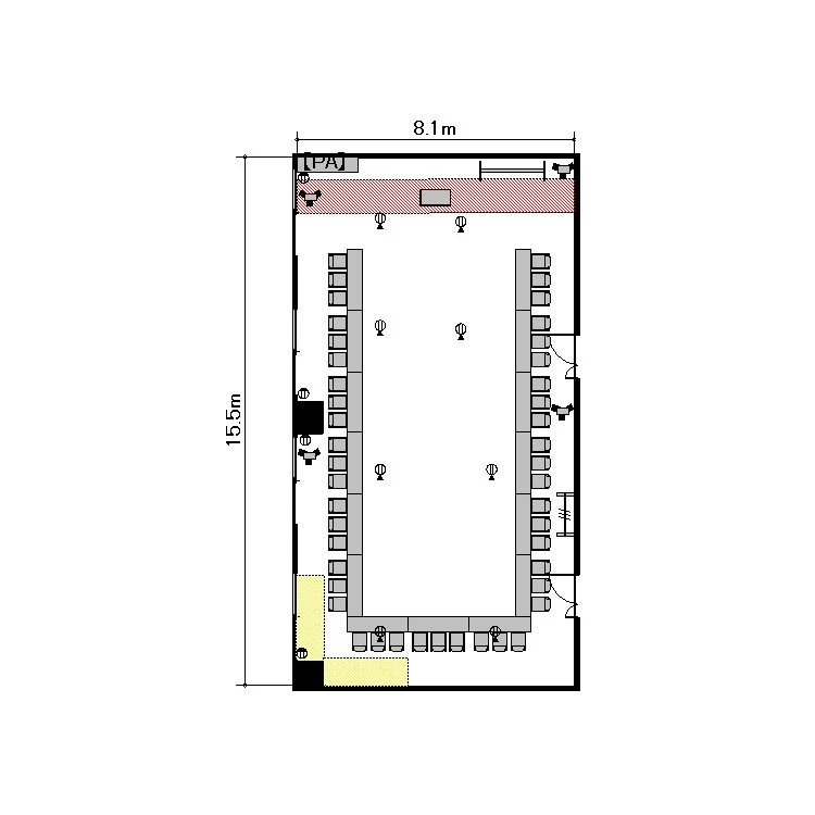
第8会議室
ホワイトボード : 1
演台 : 1
電源タップ : 3
個別空調:なし 電気容量(総A数):120A LAN口数:2 窓:有 窓開閉可不可: 不可
外受付:不可















〒802-0001
福岡県北九州市小倉北区浅野2-14-2 小倉興産16号館 8~9階(事務所:8階)
JR鹿児島本線 小倉駅 新幹線口 徒歩3分
北九州都市モノレール 小倉駅 新幹線口 徒歩3分
ご利用
可能時間
月曜日:07:00〜23:00
火曜日:07:00〜23:00
水曜日:07:00〜23:00
木曜日:07:00〜23:00
金曜日:07:00〜23:00
土曜日:07:00〜23:00
日曜日:07:00〜23:00
※時間外のご利用についてはご相談ください。
株式会社ティーケーピー
本社:〒162-0844 東京都新宿区市谷八幡町8番地 TKP市ヶ谷ビル2階
お問い合わせ:03-4577-9269