TKP金沢カンファレンスセンター
カンファレンスルーム6C
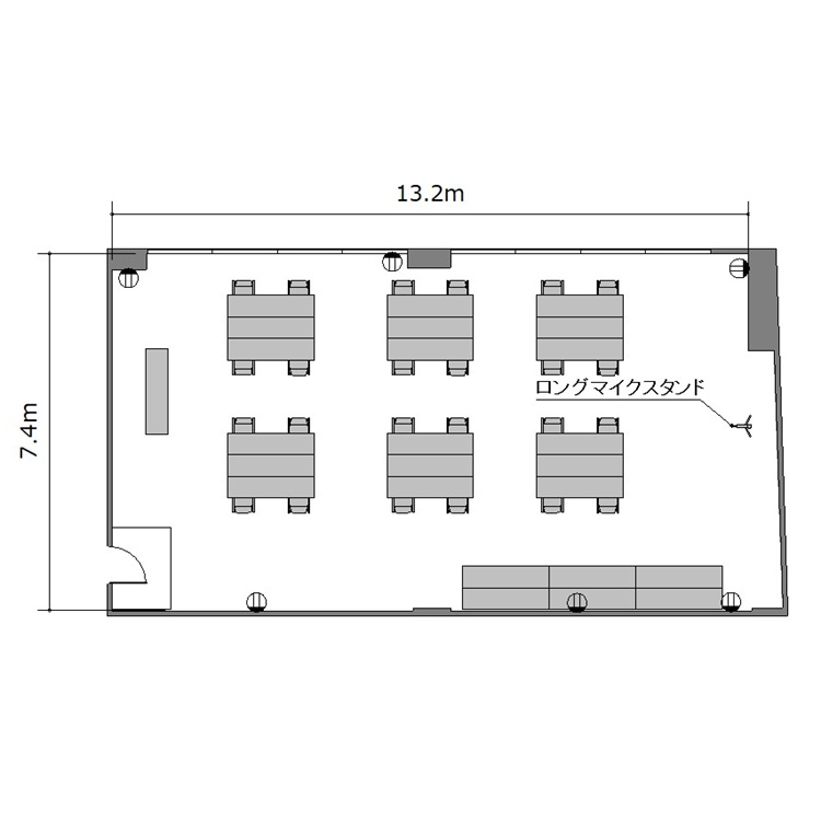
ホワイトボード : 1
演台 : 1
電源タップ : 3
個別空調:有 電気容量(総A数):75A LAN口数:2 窓:有 窓開閉可不可: 可
外受付:不可


















〒920-0869
石川県金沢市上堤町1-33 アパ金沢ビル3階・4階・6階(事務所:6階)
JR北陸本線 金沢駅 兼六園口(東口) 徒歩15分
JR北陸本線 金沢駅 兼六園口(東口) バス3分
ご利用
可能時間
月曜日:07:00〜23:00
火曜日:07:00〜23:00
水曜日:07:00〜23:00
木曜日:07:00〜23:00
金曜日:07:00〜23:00
土曜日:07:00〜23:00
日曜日:07:00〜23:00
※時間外のご利用についてはご相談ください。
株式会社ティーケーピー
本社:〒162-0844 東京都新宿区市谷八幡町8番地 TKP市ヶ谷ビル2階
お問い合わせ:03-4577-9269