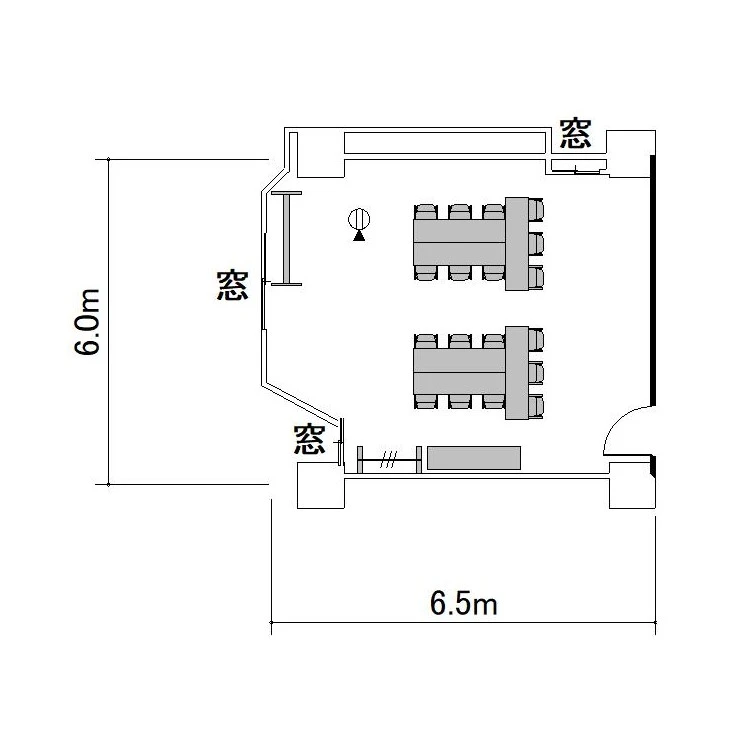
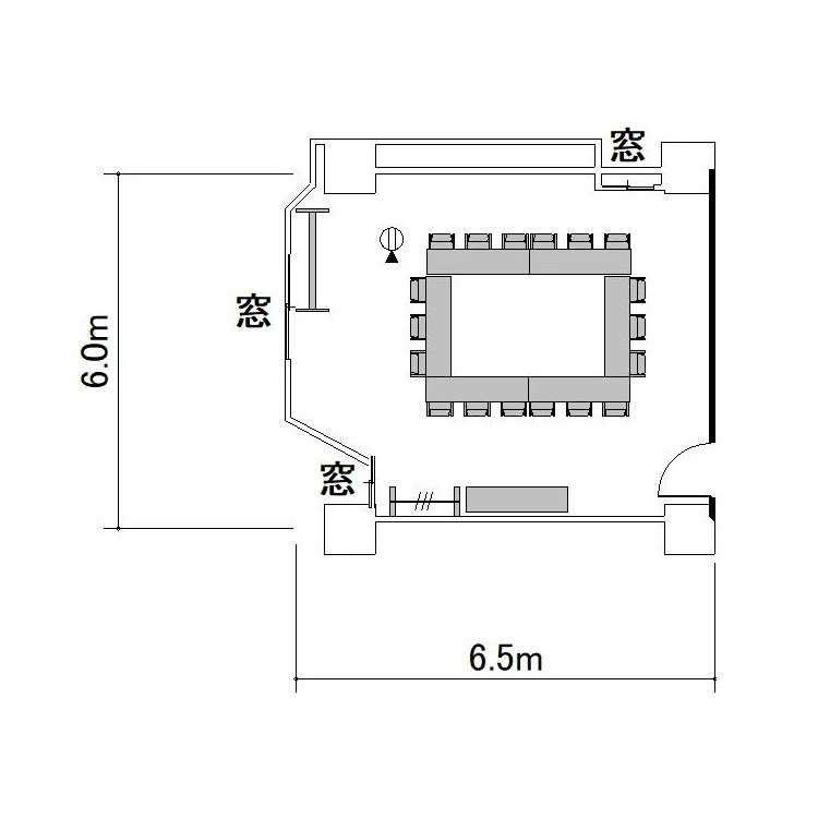
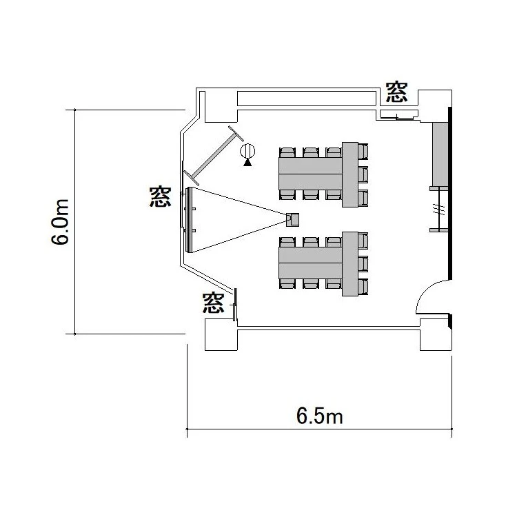
TKP池袋カンファレンスセンター
ミーティングルーム5C
ホワイトボード : 1
電源タップ : 2
個別空調:有 電気容量(総A数):15A LAN口数:1 窓:有 窓開閉可不可: 可
外受付:不可















〒171-0022
東京都豊島区南池袋2-22-1 第3高村ビル 5~6階(事務所:5階)
JR山手線 池袋駅 東口 徒歩4分
東武東上線 池袋駅 東口 徒歩4分 西武池袋線 池袋駅 東口 徒歩4分
ご利用
可能時間
月曜日:07:00〜23:00
火曜日:07:00〜23:00
水曜日:07:00〜23:00
木曜日:07:00〜23:00
金曜日:07:00〜23:00
土曜日:07:00〜23:00
日曜日:07:00〜23:00
※時間外のご利用についてはご相談ください。
株式会社ティーケーピー
本社:〒162-0844 東京都新宿区市谷八幡町8番地 TKP市ヶ谷ビル2階
お問い合わせ:03-4577-9269