TKP市ヶ谷カンファレンスセンター
ミーティングルーム6G
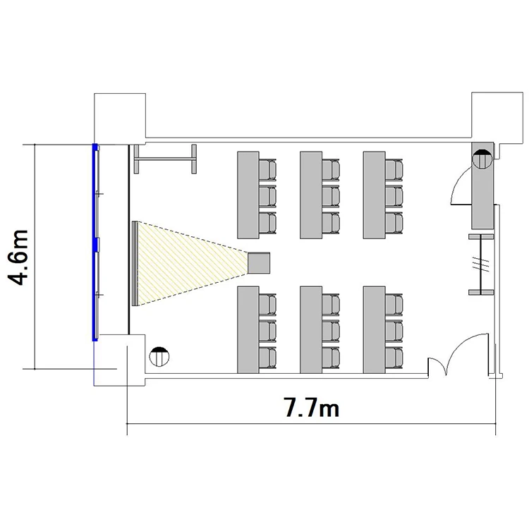
ホワイトボード : 1
電源タップ : 2
個別空調:有 電気容量(総A数):15A LAN口数:2 窓:有 窓開閉可不可: 可
外受付:不可






















〒162-0844
東京都新宿区市谷八幡町8番地 TKP市ヶ谷ビル(事務所:2階)
JR総武線 市ケ谷駅 徒歩2分
東京メトロ 市ケ谷駅 7番出口 徒歩1分 都営新宿線 市ケ谷駅 4番出口 徒歩2分
ご利用
可能時間
月曜日:07:00〜23:00
火曜日:07:00〜23:00
水曜日:07:00〜23:00
木曜日:07:00〜23:00
金曜日:07:00〜23:00
土曜日:07:00〜23:00
日曜日:07:00〜23:00
※時間外のご利用についてはご相談ください。
株式会社ティーケーピー
本社:〒162-0844 東京都新宿区市谷八幡町8番地 TKP市ヶ谷ビル2階
お問い合わせ:03-4577-9269