TKP広島本通駅前カンファレンスセンター
カンファレンスルーム3C
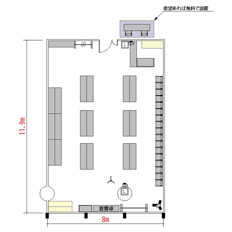
ホワイトボード : 1
演台 : 1
電源タップ : 3
個別空調:有 電気容量(総A数):30A LAN口数:2 窓:有 窓開閉可不可: 可
外受付:可




















〒730-0031
広島県広島市中区紙屋町2-2-12 信和広島ビル 3〜7階(事務所:3階)
広島電鉄宇品線 本通駅 徒歩1分
広島高速交通アストラムライン 本通駅 西1出口 徒歩2分
ご利用
可能時間
月曜日:07:00〜23:00
火曜日:07:00〜23:00
水曜日:07:00〜23:00
木曜日:07:00〜23:00
金曜日:07:00〜23:00
土曜日:07:00〜23:00
日曜日:07:00〜23:00
※時間外のご利用についてはご相談ください。
株式会社ティーケーピー
本社:〒162-0844 東京都新宿区市谷八幡町8番地 TKP市ヶ谷ビル2階
お問い合わせ:03-4577-9269