TKP博多駅前シティセンター
カンファレンス2
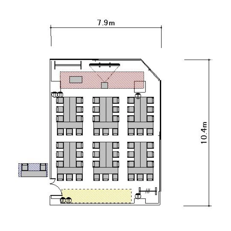
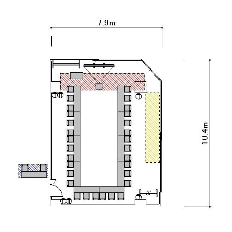
ホワイトボード : 1
演台 : 1
電源タップ : 3
個別空調:なし 電気容量(総A数):60A LAN口数:2 窓:有 窓開閉可不可: 不可
外受付:可














〒812-0011
福岡県福岡市博多区博多駅前3-2-1 日本生命博多駅前ビル 8階(事務所:8階)
JR鹿児島本線 博多駅 博多口 徒歩2分
福岡市地下鉄空港線 博多駅 西21出口 徒歩2分
ご利用
可能時間
月曜日:07:00〜23:00
火曜日:07:00〜23:00
水曜日:07:00〜23:00
木曜日:07:00〜23:00
金曜日:07:00〜23:00
土曜日:07:00〜23:00
日曜日:07:00〜23:00
※時間外のご利用についてはご相談ください。
株式会社ティーケーピー
本社:〒162-0844 東京都新宿区市谷八幡町8番地 TKP市ヶ谷ビル2階
お問い合わせ:03-4577-9269