TKP秋葉原カンファレンスセンター
カンファレンスルーム9B
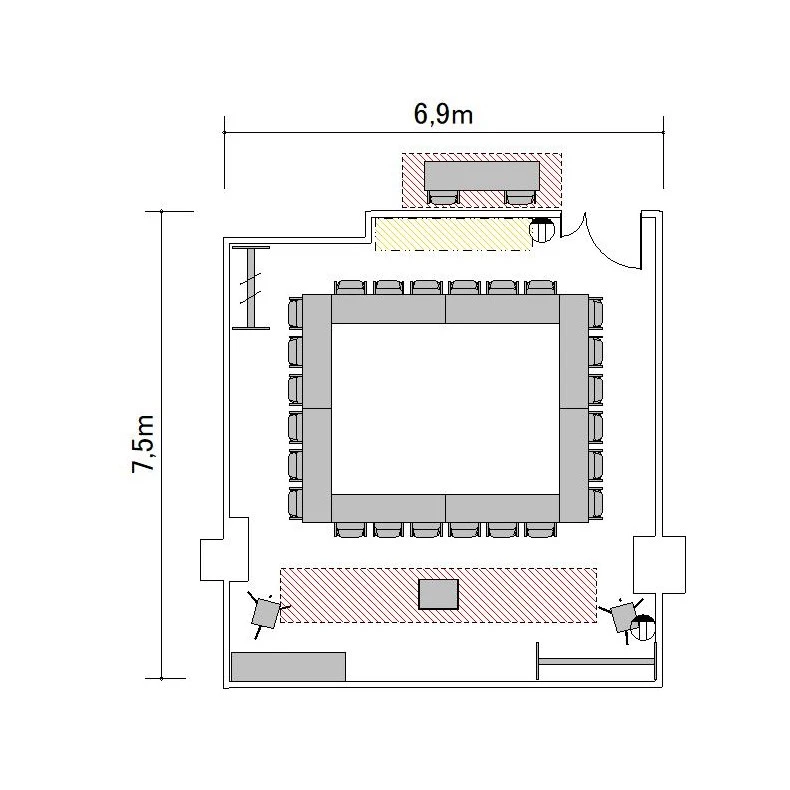
演台 : 1
ホワイトボード : 1
電源タップ : 3
個別空調:有 電気容量(総A数):30A LAN口数:2 窓:有 窓開閉可不可: 可
外受付:可






















〒101-0021
東京都千代田区外神田1-1-8 東芝万世橋ビル(事務所:5階)
JR線 秋葉原駅 電気街口 徒歩4分
つくばエクスプレス 秋葉原駅 A1出口 徒歩6分 東京メトロ日比谷線 秋葉原駅 3出口 徒歩8分 東京メトロ千代田線 新御茶ノ水駅 B2出口 徒歩8分
ご利用
可能時間
月曜日:07:00〜23:00
火曜日:07:00〜23:00
水曜日:07:00〜23:00
木曜日:07:00〜23:00
金曜日:07:00〜23:00
土曜日:07:00〜23:00
日曜日:07:00〜23:00
※時間外のご利用についてはご相談ください。
株式会社ティーケーピー
本社:〒162-0844 東京都新宿区市谷八幡町8番地 TKP市ヶ谷ビル2階
お問い合わせ:03-4577-9269