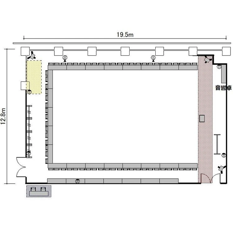
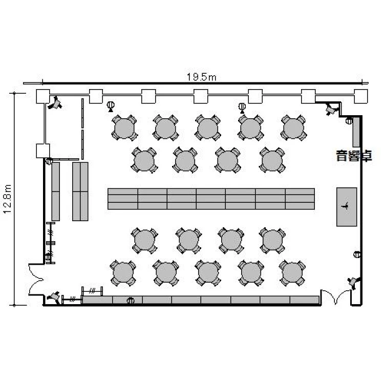
TKP赤坂カンファレンスセンター
ホール13D
ホワイトボード : 1
有線マイク : 2
演台 : 1
電源タップ : 5
個別空調:なし 電気容量(総A数):45A LAN口数:4 窓:有 窓開閉可不可: 不可
外受付:可
















〒107-6190
東京都港区赤坂 5-2-20 赤坂パークビル 13階(事務所:13階)
東京メトロ千代田線 赤坂駅 3b出口 徒歩5分
東京メトロ銀座線 赤坂見附駅 10番出口 徒歩9分
ご利用
可能時間
月曜日:07:00〜23:00
火曜日:07:00〜23:00
水曜日:07:00〜23:00
木曜日:07:00〜23:00
金曜日:07:00〜23:00
土曜日:07:00〜23:00
日曜日:07:00〜23:00
※時間外のご利用についてはご相談ください。
株式会社ティーケーピー
本社:〒162-0844 東京都新宿区市谷八幡町8番地 TKP市ヶ谷ビル2階
お問い合わせ:03-4577-9269