TKP横浜会議室
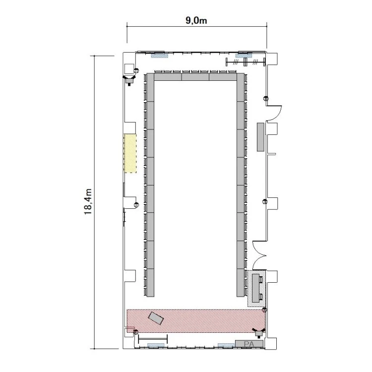
ホール6A
ホワイトボード : 1
有線マイク : 2
演台 : 1
電源タップ : 5
個別空調:有 電気容量(総A数):80A LAN口数:1 窓:有 窓開閉可不可: 可
外受付:可

















〒221-0835
神奈川県横浜市神奈川区鶴屋町3-30-8 SYビル 6~7階(事務所:7階)
JR線 横浜駅 西口 徒歩6分
京急本線 横浜駅 西口 徒歩6分 東急東横線 横浜駅 西口 徒歩6分 相鉄本線 横浜駅 西口 徒歩6分 横浜市営地下鉄ブルーライン 横浜駅 西口 徒歩6分 みなとみらい線 横浜駅 西口 徒歩6分
ご利用
可能時間
月曜日:07:00〜23:00
火曜日:07:00〜23:00
水曜日:07:00〜23:00
木曜日:07:00〜23:00
金曜日:07:00〜23:00
土曜日:07:00〜23:00
日曜日:07:00〜23:00
※時間外のご利用についてはご相談ください。
株式会社ティーケーピー
本社:〒162-0844 東京都新宿区市谷八幡町8番地 TKP市ヶ谷ビル2階
お問い合わせ:03-4577-9269