TKP九段下神保町ビジネスセンター
カンファレンスルーム4A
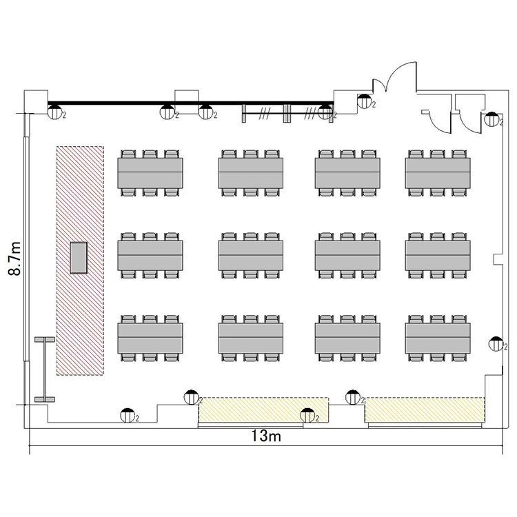
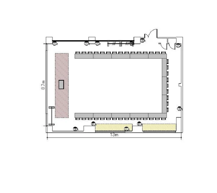
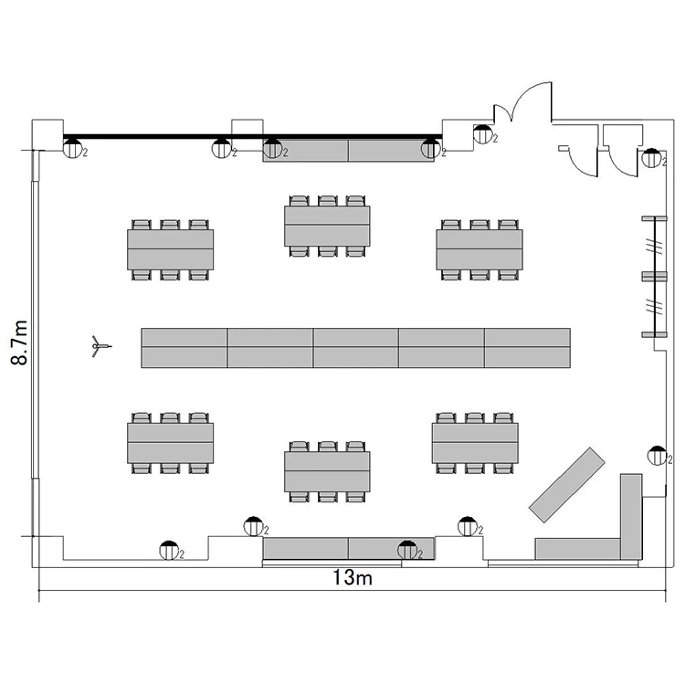
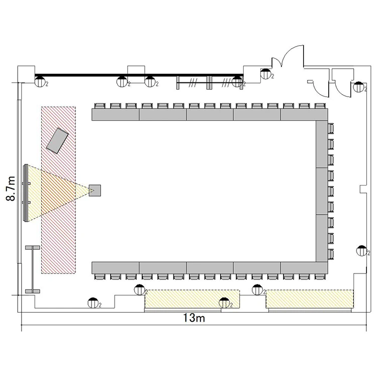
ホワイトボード : 1
演台 : 1
電源タップ : 3
個別空調:有 電気容量(総A数):60A LAN口数:1 窓:有 窓開閉可不可: 可
外受付:不可



















〒101-0051
東京都千代田区神田神保町3-4 柳川ビル 2~5階(事務所:2階)
東京メトロ 九段下駅 5番出口 徒歩1分
都営新宿線 九段下駅 5番出口 徒歩1分 東京メトロ半蔵門線 神保町駅 A2出口 徒歩4分 都営線 神保町駅 A2出口 徒歩4分
ご利用
可能時間
月曜日:08:00〜23:00
火曜日:08:00〜23:00
水曜日:08:00〜23:00
木曜日:08:00〜23:00
金曜日:08:00〜23:00
土曜日:08:00〜23:00
日曜日:08:00〜23:00
※時間外のご利用についてはご相談ください。
株式会社ティーケーピー
本社:〒162-0844 東京都新宿区市谷八幡町8番地 TKP市ヶ谷ビル2階
お問い合わせ:03-4577-9269