TKP神田ビジネスセンター
カンファレンスルーム603
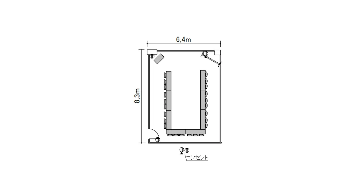
ホワイトボード : 1
演台 : 1
電源タップ : 3
個別空調:有 電気容量(総A数):40A LAN口数:1 窓:なし 窓開閉可不可: 不可
外受付:不可




















〒101-0053
東京都千代田区神田美土代町3-2 神田アベビル 4~8階(事務所:7階)
JR線 神田駅 北口 徒歩6分
東京メトロ丸ノ内線 淡路町駅 B6出口 徒歩3分 都営新宿線 小川町駅 B6出口 徒歩3分 東京メトロ千代田線 新御茶ノ水駅 B6出口 徒歩3分 東京メトロ銀座線 神田駅 4番出口 徒歩6分
ご利用
可能時間
月曜日:08:00〜23:00
火曜日:08:00〜23:00
水曜日:08:00〜23:00
木曜日:08:00〜23:00
金曜日:08:00〜23:00
土曜日:08:00〜23:00
日曜日:08:00〜23:00
※時間外のご利用についてはご相談ください。
株式会社ティーケーピー
本社:〒162-0844 東京都新宿区市谷八幡町8番地 TKP市ヶ谷ビル2階
お問い合わせ:03-4577-9269