TKP千葉駅東口ビジネスセンター
カンファレンスルーム3A
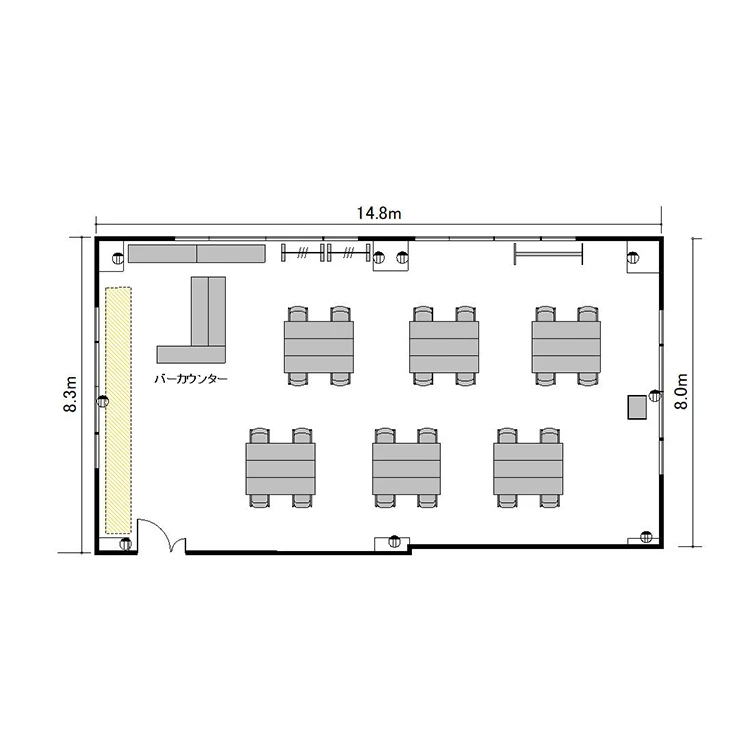
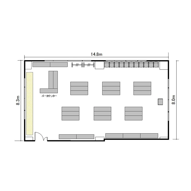
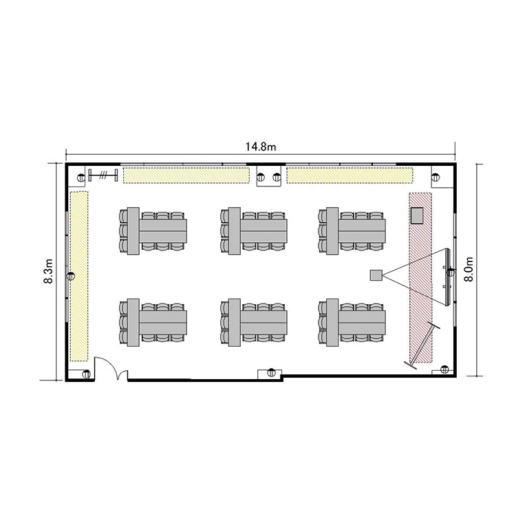
ホワイトボード : 1
演台 : 1
電源タップ : 3
個別空調:有 電気容量(総A数):40A LAN口数:4 窓:有 窓開閉可不可: 可
外受付:不可

















〒260-0028
千葉県千葉市中央区新町1-20 江澤ビル 3~4階(事務所:3階)
JR総武線 千葉駅 東口 徒歩4分
京成千葉線 京成千葉駅 京成東口 徒歩4分 京成千葉線 千葉中央駅 西口 徒歩4分
ご利用
可能時間
月曜日:07:00〜22:00
火曜日:07:00〜22:00
水曜日:07:00〜22:00
木曜日:07:00〜22:00
金曜日:07:00〜22:00
土曜日:07:00〜22:00
日曜日:07:00〜22:00
※時間外のご利用についてはご相談ください。
株式会社ティーケーピー
本社:〒162-0844 東京都新宿区市谷八幡町8番地 TKP市ヶ谷ビル2階
お問い合わせ:03-4577-9269